Floor Plan

*Plan may show available options & upgrades.

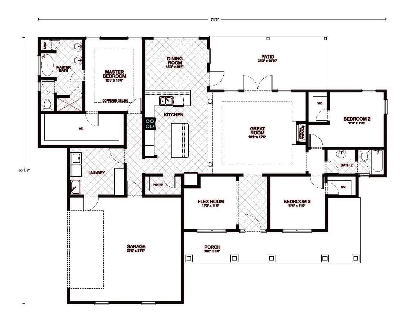
Bronson - Custom Home Floor Plan

This splendid floor plan is the epitome of thoughtful design, blending functional living with an elegant touch, perfect for those seeking to build a custom home with a modern sensibility. The layout greets you with a sizable porch leading into a spacious great room, which serves as the central gathering space, complete with high ceilings that enhance the sense of openness and luxury.

The kitchen, a marvel of design, offers ample counter space, a convenient pantry, and a layout that makes it easy to interact with family and guests in the dining room, which is comfortably situated for both casual and formal occasions. The kitchen’s placement ensures that it is the heart of the home, where memories are made and shared.

Secluded for utmost privacy, the master suite is a serene retreat, boasting a coffered ceiling that adds architectural interest and a sense of grandeur. The suite is complemented by a master bath with a dual vanity, a sizeable shower, and a generous walk-in closet. On the opposite side of the home, two additional bedrooms offer ample space and privacy, each with easy access to full bathrooms and walk-in closets.

A flex room provides versatility, whether it be a home office, hobby room, or an extra bedroom, it adapts to your lifestyle needs. The adjacent laundry room is strategically placed for convenience.

Outdoor living is celebrated with a large patio, offering a tranquil space for relaxation and entertainment. The garage provides ample space for vehicles and storage. With a total living area of 2,100 square feet, this home is meticulously crafted to maximize comfort and style, providing a distinguished template for your custom home aspirations.

Mortgage Calculator

The calculated amount is an estimate, with the exact
loan terms determined on an individual basis.
Estimated calculated amount does not include taxes & insurance.
$ 200000
$ 150000
$ 750000
$
[downpayment]/[homeprice]*100
%
([homeprice]-[downpayment])*([interestrate]/100)/12/(1-Math.pow(1+([interestrate]/100)/12,-([loanterm]*12)))
$

Request More Information

WGR Homes 2026 Promo

Unlock "Build Now" Financing

Get 0% down + No Payment Until Completion
*With Approved Credit. Offer Ends 03/31/2025

$5,000

Save On Upgrades

LIMITED TIME OFFER - Sign up by 03/31/2026!

Receive $5,000 in Options & Upgrades
Plus: $0 Down + No Payment During Construction *WAC

LIMITED TIME OFFER
Sign up by 03/31/2026!

Receive $5,000 in Options & Upgrades
Plus: $0 Down + No Payment During Construction *WAC

$5,000

Save On Upgrades