Floor Plan

*Plan may show available options & upgrades.

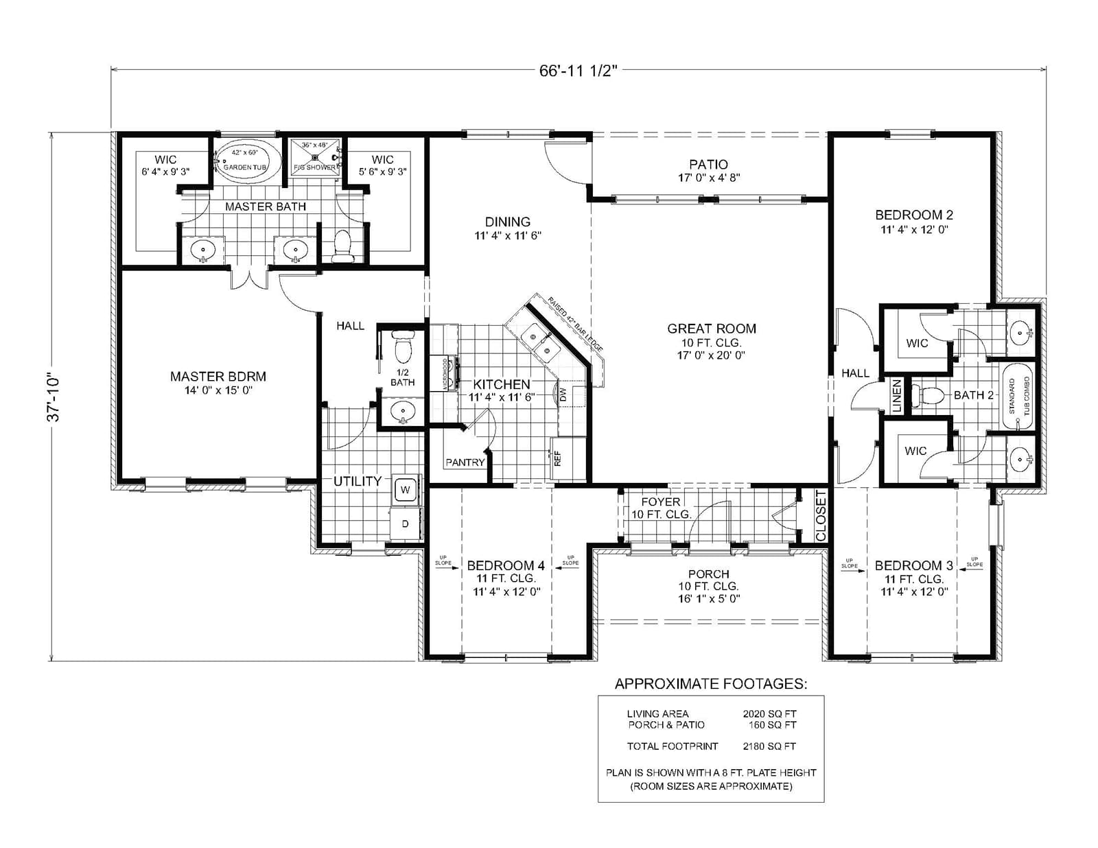
Kenadian Plan
This expansive floor plan delivers a refined balance of openness, privacy, and thoughtful functionality, making it well-suited for both everyday living and entertaining. At the center of the home, the large great room features impressive ceiling height and generous proportions, creating a bright and inviting space for gathering with family or hosting guests. Its open connection to the dining area and kitchen encourages seamless movement and a natural flow throughout the main living spaces. The kitchen is designed with efficiency and style in mind, offering ample counter space, a functional layout, and a convenient pantry for storage. Positioned nearby, the dining area provides a comfortable setting for family meals or special occasions, while maintaining easy access to both indoor and outdoor living areas. A covered patio extends the living space outdoors, offering a relaxed setting for dining, entertaining, or enjoying quiet moments outside. The master suite serves as a private retreat, featuring a spacious bedroom and a well-appointed bath with dual vanities, a soaking tub, a separate shower, and dual walk-in closets for added comfort and organization. Secondary bedrooms are thoughtfully distributed across the home, each offering comfortable dimensions, walk-in closets, and access to full baths, providing privacy for family members or guests. An additional bedroom near the front of the home offers flexibility as a guest room, home office, or multi-purpose space. Additional highlights include a welcoming foyer, a centrally located utility room, ample storage throughout, and multiple porches that enhance both curb appeal and outdoor enjoyment. With approximately 2,020 square feet of living space and a total footprint of around 2,180 square feet, this floor plan offers a spacious, well-organized layout that combines comfort, versatility, and timeless design, making it an excellent foundation for a personalized custom home.

Mortgage Calculator

The calculated amount is an estimate, with the exact
loan terms determined on an individual basis.
Estimated calculated amount does not include taxes & insurance.
$ 200000
$ 150000
$ 750000
$
[downpayment]/[homeprice]*100
%
([homeprice]-[downpayment])*([interestrate]/100)/12/(1-Math.pow(1+([interestrate]/100)/12,-([loanterm]*12)))
$

Request More Information

WGR Homes 2026 Promo

Unlock "Build Now" Financing

Get 0% down + No Payment Until Completion
*With Approved Credit. Offer Ends 03/31/2025

$5,000

Save On Upgrades

LIMITED TIME OFFER - Sign up by 03/31/2026!

Receive $5,000 in Options & Upgrades
Plus: $0 Down + No Payment During Construction *WAC

LIMITED TIME OFFER
Sign up by 03/31/2026!

Receive $5,000 in Options & Upgrades
Plus: $0 Down + No Payment During Construction *WAC

$5,000

Save On Upgrades