Floor Plan

*Plan may show available options & upgrades.

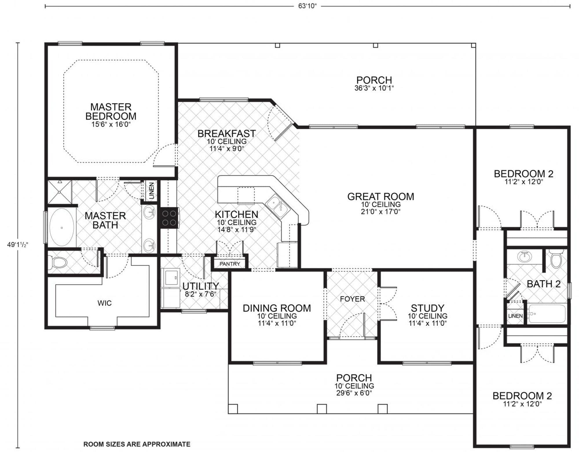
Kendall - Custom Home Floor Plan

The Kendall floor plan is a modern and spacious design that effortlessly combines functionality with elegance, ideal for crafting your custom home. The large porch welcomes you into a bright foyer, which opens to an impressive great room with a 10-foot ceiling, providing a generous space for entertaining and relaxing with family and friends.

The kitchen is thoughtfully positioned as the heart of the home, boasting a pantry for storage and a large island that encourages social cooking and dining. It connects to a charming breakfast nook for casual meals and overlooks the great room, allowing for seamless interaction. For formal dining, there is a dedicated dining room with a 10-foot ceiling, adding an air of sophistication to your meals.

The master suite is designed to be a tranquil retreat, featuring a spacious bedroom with ample room for a sitting area, a luxurious master bath with dual vanities, and a large walk-in closet. The home also offers two additional bedrooms, each with convenient access to the second full bath, ensuring privacy and comfort for all.

A study with a 10-foot ceiling provides flexibility as a home office or extra bedroom, and the utility room is conveniently located for household management. With a total living area of 2,033 square feet and additional porch space, the Kendall floor plan is an exceptional choice for those seeking a home that is both inviting and stylish.

Mortgage Calculator

The calculated amount is an estimate, with the exact
loan terms determined on an individual basis.
Estimated calculated amount does not include taxes & insurance.
$ 200000
$ 150000
$ 750000
$
[downpayment]/[homeprice]*100
%
([homeprice]-[downpayment])*([interestrate]/100)/12/(1-Math.pow(1+([interestrate]/100)/12,-([loanterm]*12)))
$

Request More Information

WGR Homes 2026 Promo

Unlock "Build Now" Financing

Get 0% down + No Payment Until Completion
*With Approved Credit. Offer Ends 03/31/2025

$5,000

Save On Upgrades

LIMITED TIME OFFER - Sign up by 03/31/2026!

Receive $5,000 in Options & Upgrades
Plus: $0 Down + No Payment During Construction *WAC

LIMITED TIME OFFER
Sign up by 03/31/2026!

Receive $5,000 in Options & Upgrades
Plus: $0 Down + No Payment During Construction *WAC

$5,000

Save On Upgrades