Floor Plan

*Plan may show available options & upgrades.

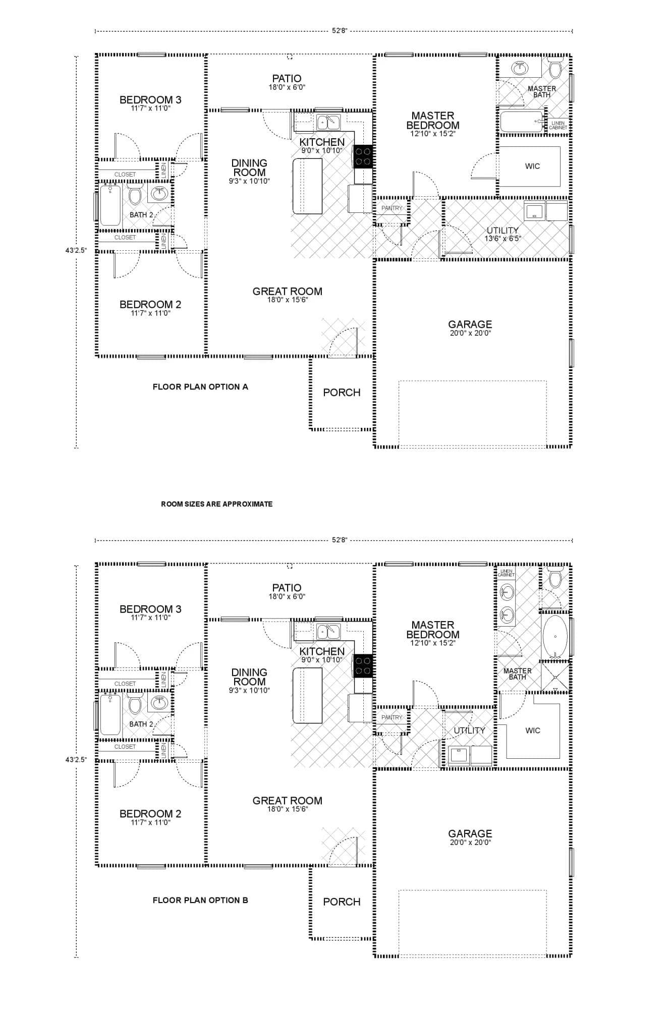
Landry Floor Plan

The Landry floor plan presents two options (A and B), each offering a unique take on a spacious and modern living arrangement.

Option A:
This layout features a substantial living area that is perfect for family living and entertaining, with a large great room measuring 18’0″ x 15’6″. The adjoining kitchen and dining room create an open, airy feel and a seamless flow for mealtimes and gatherings. The kitchen features ample counter space and a practical layout for convenience and ease of use. The master bedroom is a private sanctuary with a sizeable walk-in closet and a full master bath, providing a retreat-like atmosphere for relaxation. Two additional bedrooms offer comfortable spaces for family or guests, with a second full bath easily accessible. This option also includes a utility room, ensuring practicality in everyday living. The outdoor living potential is maximized with both a porch and a patio, ideal for outdoor enjoyment and entertaining.

Option B:
Similar to Option A, this floor plan offers a spacious great room and an efficiently designed kitchen and dining area. The master bedroom remains a comfortable retreat with its own bath and closet space. The second and third bedrooms are well-sized, and the utility room retains its practical placement for household chores. Option B maintains the porch and patio areas, providing ample outdoor space for relaxation and entertainment.

Both options of the Landry floor plan feature a large garage and a total under-roof space that exceeds 2000 square feet, ensuring that there is plenty of room for vehicles and storage. The living spaces are carefully designed to accommodate a contemporary lifestyle, blending functionality with comfort and style.

Mortgage Calculator

The calculated amount is an estimate, with the exact
loan terms determined on an individual basis.
Estimated calculated amount does not include taxes & insurance.
$ 200000
$ 150000
$ 750000
$
[downpayment]/[homeprice]*100
%
([homeprice]-[downpayment])*([interestrate]/100)/12/(1-Math.pow(1+([interestrate]/100)/12,-([loanterm]*12)))
$

Request More Information

WGR Homes 2026 Promo

Unlock "Build Now" Financing

Get 0% down + No Payment Until Completion
*With Approved Credit. Offer Ends 03/31/2025

$5,000

Save On Upgrades

LIMITED TIME OFFER - Sign up by 03/31/2026!

Receive $5,000 in Options & Upgrades
Plus: $0 Down + No Payment During Construction *WAC

LIMITED TIME OFFER
Sign up by 03/31/2026!

Receive $5,000 in Options & Upgrades
Plus: $0 Down + No Payment During Construction *WAC

$5,000

Save On Upgrades