Floor Plan

*Plan may show available options & upgrades.

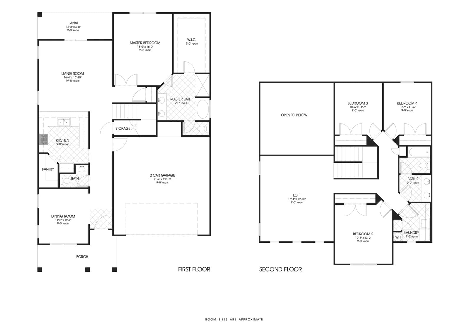
Seymour B - Custom Home Floor Plan

The Seymour-B floor plan is a beautifully orchestrated two-story home that offers a total of 2488 square feet of living space, expertly divided between communal areas and private retreats to accommodate a variety of lifestyles and activities.

The first-floor layout is designed for seamless living and entertaining, featuring a spacious living room that is perfect for gatherings or quiet evenings in. The adjoining dining room provides a scenic area for meals, with direct porch access for an indoor-outdoor dining experience. The kitchen, efficient and modern, includes a pantry for additional storage and is situated to allow for social cooking and interaction with family or guests.

The master bedroom suite on the first floor is a private sanctuary, with ample room for rest, a walk-in closet for ample storage, and an en suite master bath designed for relaxation. The suite also opens onto a lanai, offering a private outdoor space to enjoy the serenity of your surroundings.

Ascending to the second floor, the home continues to impress with three additional bedrooms, each offering personal space and comfort. A full bath serves these bedrooms, ensuring convenience for all. The loft adds a dynamic element to the home, open to the living room below, and can be utilized as a secondary family room, a play area, or a home office.

Completing the home’s floor plan is a practical two-car garage and generous outdoor living space, including a welcoming porch and a relaxing lanai, providing ample opportunities for enjoying the outdoors. The Seymour-B represents the ideal blend of open-plan living with the privacy of well-appointed bedrooms, making it an excellent choice for a family home that caters to both shared experiences and individual solitude.

Mortgage Calculator

The calculated amount is an estimate, with the exact
loan terms determined on an individual basis.
Estimated calculated amount does not include taxes & insurance.
$ 200000
$ 150000
$ 750000
$
[downpayment]/[homeprice]*100
%
([homeprice]-[downpayment])*([interestrate]/100)/12/(1-Math.pow(1+([interestrate]/100)/12,-([loanterm]*12)))
$

Request More Information

WGR Homes 2026 Promo

Unlock "Build Now" Financing

Get 0% down + No Payment Until Completion
*With Approved Credit. Offer Ends 03/31/2025

$5,000

Save On Upgrades

LIMITED TIME OFFER - Sign up by 03/31/2026!

Receive $5,000 in Options & Upgrades
Plus: $0 Down + No Payment During Construction *WAC

LIMITED TIME OFFER
Sign up by 03/31/2026!

Receive $5,000 in Options & Upgrades
Plus: $0 Down + No Payment During Construction *WAC

$5,000

Save On Upgrades