Floor Plan

*Plan may show available options & upgrades.

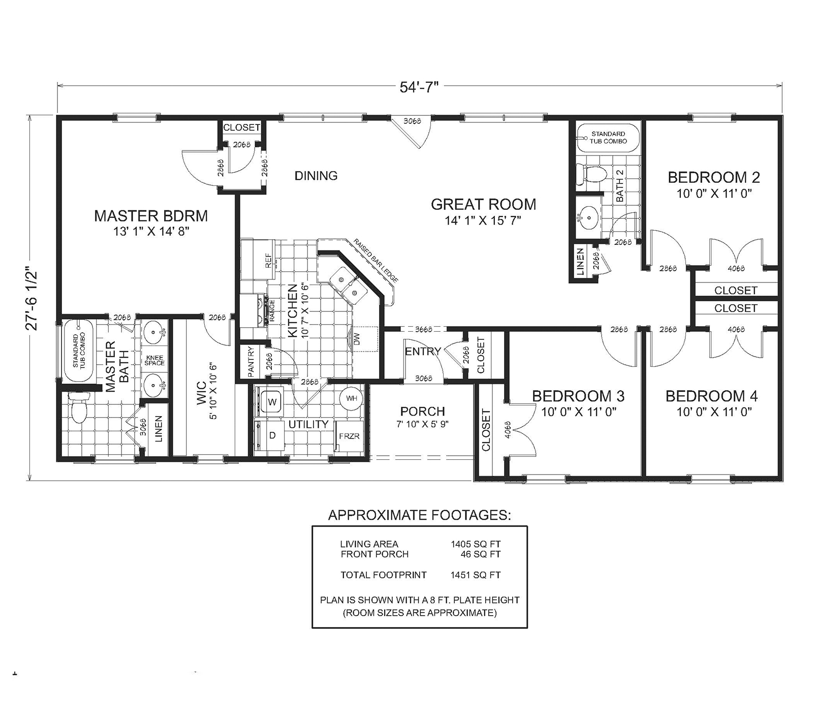
El Dorado - Custom Home Floor Plan
The El Dorado floor plan offers a thoughtfully designed layout that combines modern efficiency with welcoming comfort. Spanning approximately 1,405 square feet of living space, this single-story home is ideal for growing families or those seeking a well-balanced design with room to relax and entertain. At the heart of the home lies the open-concept great room, seamlessly connected to the dining area and kitchen. The kitchen’s convenient bar seating and corner pantry make it both stylish and practical, perfect for family gatherings or casual meals. The master suite serves as a peaceful retreat, featuring a spacious bedroom, a luxurious en suite bath with double vanities, a soaking tub, and a separate shower. A large walk-in closet provides ample storage and easy access to the adjoining utility room for added convenience. Three additional bedrooms are thoughtfully placed on the opposite side of the home, ensuring privacy for everyone. Each bedroom includes a generous closet, and they share a full bathroom with a standard tub and linen storage. Additional highlights include a welcoming covered front porch, a dedicated utility room with washer and dryer space, and well-positioned closets throughout for optimized organization. Compact yet remarkably efficient, The El Dorado delivers everything today’s homeowners desire-style, comfort, and smart design—all in a footprint that fits beautifully in any neighborhood or rural setting.

Mortgage Calculator

The calculated amount is an estimate, with the exact
loan terms determined on an individual basis.
Estimated calculated amount does not include taxes & insurance.
$ 200000
$ 150000
$ 750000
$
[downpayment]/[homeprice]*100
%
([homeprice]-[downpayment])*([interestrate]/100)/12/(1-Math.pow(1+([interestrate]/100)/12,-([loanterm]*12)))
$

Request More Information

Unlock "Build Now" Financing

Get 0% down + No Payment Until Completion
*With Approved Credit. Offer Ends 04/30/2025

$5,000

Save On Upgrades

LIMITED TIME OFFER - Sign up by 04/30/2026!

Receive $5,000 in Options & Upgrades
Plus: $0 Down + No Payment During Construction *WAC

LIMITED TIME OFFER
Sign up by 04/30/2026!

Receive $5,000 in Options & Upgrades
Plus: $0 Down + No Payment During Construction *WAC

$5,000

Save On Upgrades