Floor Plan

*Plan may show available options & upgrades.

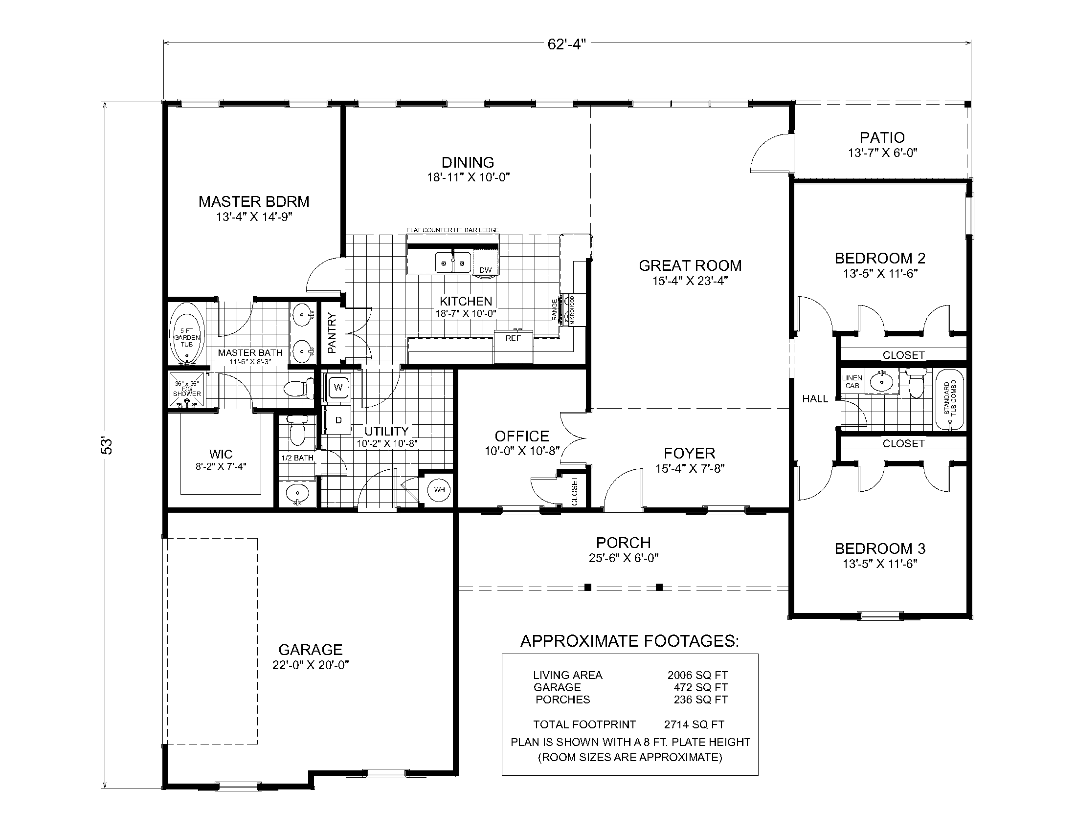
Ferndale - Custom Home Floor Plan

This inviting floor plan offers a well-balanced design that blends open living spaces with thoughtfully placed private areas, making it an ideal choice for a custom home that prioritizes comfort, functionality, and everyday livability. The spacious great room serves as the heart of the home, providing an open and airy environment that is perfect for entertaining guests or enjoying relaxed family time.

The kitchen is designed with both form and function in mind, featuring ample counter space, an efficient layout, and a seamless connection to the adjacent dining area. This cohesive flow creates an ideal setting for casual meals, gatherings, and daily routines, while keeping the kitchen connected to the main living space. Nearby, the dining area offers flexibility for hosting family dinners or more formal occasions.

The master suite is a private retreat, offering a generously sized bedroom, a large walk-in closet, and a well-appointed master bath complete with dual vanities, a soaking tub, and a separate shower. Located away from the main living areas, the additional bedrooms provide privacy and comfort, each featuring generous closet space and convenient access to shared full bathrooms.

Additional highlights include a dedicated home office ideal for remote work or study, a centrally located utility room with ample storage, and a welcoming foyer that creates a strong first impression upon entry. Outdoor living is enhanced by covered front and rear porches, offering peaceful spaces to relax and enjoy the surrounding views. The attached garage provides ample room for vehicles, storage, and hobbies.

With approximately 2,006 square feet of living space, a spacious garage, and multiple covered porches, this floor plan delivers a thoughtful layout that maximizes usability without sacrificing style. Every detail has been carefully considered, making the Ferndale Floor Plan a perfect foundation for a custom home tailored to your lifestyle.

Mortgage Calculator

The calculated amount is an estimate, with the exact
loan terms determined on an individual basis.
Estimated calculated amount does not include taxes & insurance.
$ 200000
$ 150000
$ 750000
$
[downpayment]/[homeprice]*100
%
([homeprice]-[downpayment])*([interestrate]/100)/12/(1-Math.pow(1+([interestrate]/100)/12,-([loanterm]*12)))
$

Request More Information

WGR Homes 2026 Promo

Unlock "Build Now" Financing

Get 0% down + No Payment Until Completion
*With Approved Credit. Offer Ends 03/31/2025

$5,000

Save On Upgrades

LIMITED TIME OFFER - Sign up by 03/31/2026!

Receive $5,000 in Options & Upgrades
Plus: $0 Down + No Payment During Construction *WAC

LIMITED TIME OFFER
Sign up by 03/31/2026!

Receive $5,000 in Options & Upgrades
Plus: $0 Down + No Payment During Construction *WAC

$5,000

Save On Upgrades