Floor Plan

*Plan may show available options & upgrades.

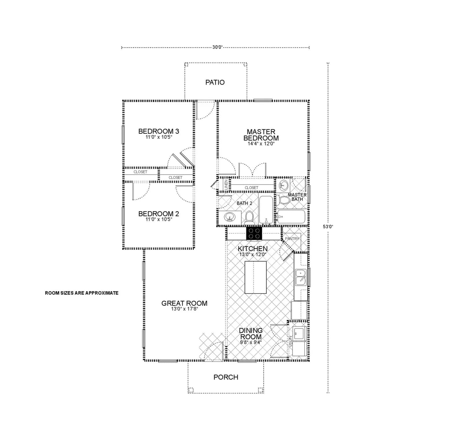
Henderson B Floorplan

The Henderson floor plan is a well-appointed design, encompassing 1200 square feet of living space, carefully crafted to provide a comfortable and efficient home environment. This plan is an excellent choice for those seeking a harmonious blend of function and comfort.

Upon entering, the layout leads to a spacious great room, measuring 13’0″ x 17’8″, ideal for daily family life and for entertaining guests. The great room’s open concept flows into a practical dining area of 9’8″ x 9’4″, positioned conveniently next to the kitchen. The kitchen itself, sized at 13’0″ x 12’0″, features a smart layout that optimizes workspace and storage, making it perfect for culinary enthusiasts.

The master bedroom, with its dimensions of 14’4″ x 12’0″, offers a private and serene retreat, complete with an en suite bathroom, ensuring a comfortable and secluded space for relaxation. Two additional bedrooms, each 11’0″ x 10’5″, provide ample space for family or guests, and are supported by a second full bathroom, illustrating the home’s thoughtful consideration for both privacy and convenience.

This floor plan also includes a patio, which extends the living space outdoors and offers a delightful area for relaxation or social gatherings in the open air. With the inclusion of a porch and a patio, the total under-roof area comes to 1320 square feet, providing additional outdoor leisure space. The Henderson floor plan strikes a balance between open communal areas and intimate private spaces, ensuring that it will be a comfortable and inviting home.

Mortgage Calculator

The calculated amount is an estimate, with the exact
loan terms determined on an individual basis.
Estimated calculated amount does not include taxes & insurance.
$ 200000
$ 150000
$ 750000
$
[downpayment]/[homeprice]*100
%
([homeprice]-[downpayment])*([interestrate]/100)/12/(1-Math.pow(1+([interestrate]/100)/12,-([loanterm]*12)))
$

Request More Information

WGR Homes 2026 Promo

Unlock "Build Now" Financing

Get 0% down + No Payment Until Completion
*With Approved Credit. Offer Ends 03/31/2025

$5,000

Save On Upgrades

LIMITED TIME OFFER - Sign up by 03/31/2026!

Receive $5,000 in Options & Upgrades
Plus: $0 Down + No Payment During Construction *WAC

LIMITED TIME OFFER
Sign up by 03/31/2026!

Receive $5,000 in Options & Upgrades
Plus: $0 Down + No Payment During Construction *WAC

$5,000

Save On Upgrades