Floor Plan

*Plan may show available options & upgrades.

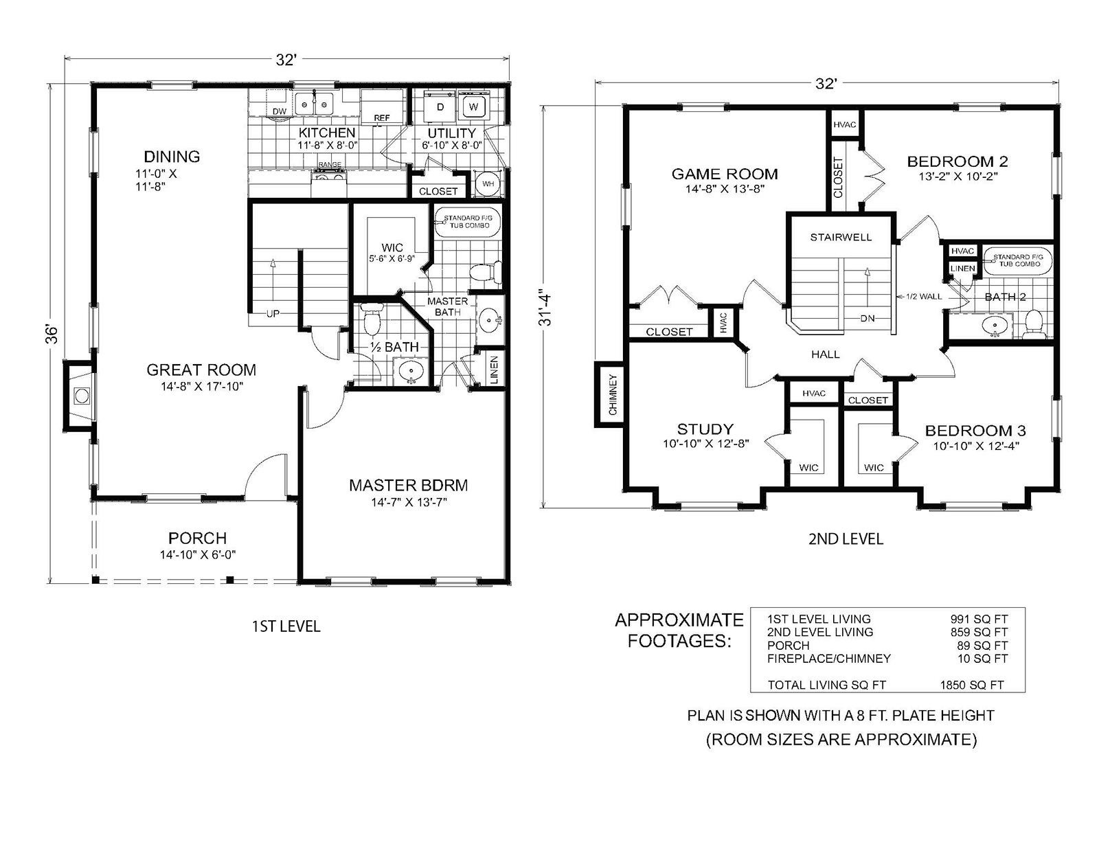
Kingsville - Custom Home Floor Plan

With spacious gathering areas on the main level and private bedroom retreats upstairs, this layout is perfect for families who want room to grow without sacrificing everyday convenience.

The first level features an inviting great room that seamlessly connects to the dining area, creating an open-concept space ideal for entertaining or relaxing after a long day. The well-planned kitchen includes an efficient layout with plenty of counter space, making meal prep easy and enjoyable. A conveniently located utility room, half bath, and storage areas add to the home’s practicality, while the master suite offers a peaceful retreat with a well-appointed master bath and large walk-in closet.

Upstairs, a generous game room serves as the centerpiece of the second level, providing the perfect spot for movie nights, playtime, or a dedicated lounge area. Two additional bedrooms, each with ample closet space, share a full bath, while a private study offers the flexibility for a home office, hobby room, or optional fourth bedroom.

With approximately 1,850 square feet of total living space, this two-story design offers efficiency without compromising comfort. Thoughtfully arranged rooms, abundant storage, and inviting shared spaces come together to create a home that supports both quiet moments and vibrant family living.

The Kingsville floor plan delivers practical elegance, intuitive flow, and the versatility that today’s homeowners value most. It is an excellent choice for anyone seeking a well-crafted layout with character, comfort, and room to enjoy every season of life.

Mortgage Calculator

The calculated amount is an estimate, with the exact
loan terms determined on an individual basis.
Estimated calculated amount does not include taxes & insurance.
$ 200000
$ 150000
$ 750000
$
[downpayment]/[homeprice]*100
%
([homeprice]-[downpayment])*([interestrate]/100)/12/(1-Math.pow(1+([interestrate]/100)/12,-([loanterm]*12)))
$

Request More Information

Unlock "Build Now" Financing

Get 0% down + No Payment Until Completion
*With Approved Credit. Offer Ends 05/31/2025

$10,000

Save On Upgrades

LIMITED TIME OFFER - Sign up by 05/31/2026!

Receive $10,000 in Options & Upgrades
Plus: $0 Down + No Payment During Construction *WAC

LIMITED TIME OFFER
Sign up by 05/31/2026!

Receive $10,000 in Options & Upgrades
Plus: $0 Down + No Payment During Construction *WAC

$10,000

Save On Upgrades