Floor Plan

*Plan may show available options & upgrades.

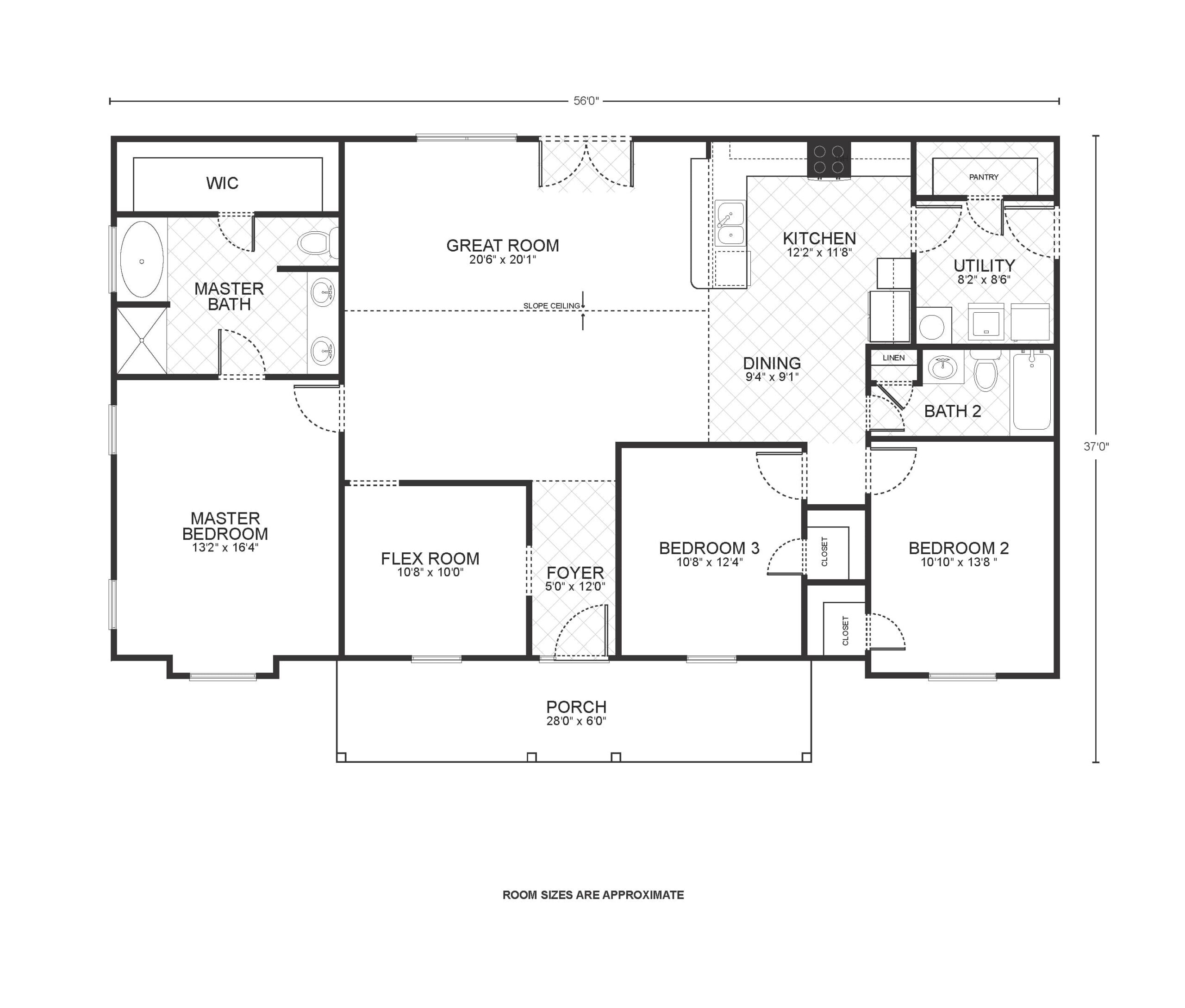
Summerwood - Custom Home Floor Plan
Gallery

The Summerwood floor plan is a contemporary and spacious design, offering 1755 square feet of comfortable living space. This layout is perfectly suited for modern families or individuals who desire a blend of open-plan living with the privacy of well-defined spaces.

At the heart of the home is an expansive great room, 20’6″ x 20’1″, providing an inviting area for family gatherings, entertainment, and relaxation. The adjoining kitchen is a cook’s dream at 12’2″ x 11’8″, complete with ample counter space, modern appliances, and a pantry for extra storage. The dining area, at 9’4″ x 9’1″, is ideally situated for both casual and formal meals.

The master suite offers a luxurious retreat, featuring a spacious bedroom at 13’2″ x 16’4″, an en suite master bath with a large walk-in closet, ensuring comfort and privacy. Two additional bedrooms, at 10’10” x 13’8″ and 10’8″ x 12’4″, provide ample space for family, guests, or home offices, with a second full bath conveniently located for ease of use.

This floor plan also includes a flex room at 10’8″ x 10’0″, which can be customized to fit the homeowner’s lifestyle, whether as a study, home gym, or additional living space. A utility room near the kitchen adds functionality for household management.

Outdoor living is considered with a sizable porch, extending the living area and offering an enjoyable outdoor space. The total under-roof space of 1923 square feet, including the porch, ensures that there is ample room for both indoor and outdoor activities.

The Summerwood floor plan represents a thoughtful balance of communal areas and private retreats, all within a beautifully designed and practical layout.

Mortgage Calculator

The calculated amount is an estimate, with the exact
loan terms determined on an individual basis.
Estimated calculated amount does not include taxes & insurance.
$ 200000
$ 150000
$ 750000
$
[downpayment]/[homeprice]*100
%
([homeprice]-[downpayment])*([interestrate]/100)/12/(1-Math.pow(1+([interestrate]/100)/12,-([loanterm]*12)))
$

Request More Information

WGR Homes 2026 Promo

Unlock "Build Now" Financing

Get 0% down + No Payment Until Completion
*With Approved Credit. Offer Ends 03/31/2025

$5,000

Save On Upgrades

LIMITED TIME OFFER - Sign up by 03/31/2026!

Receive $5,000 in Options & Upgrades
Plus: $0 Down + No Payment During Construction *WAC

LIMITED TIME OFFER
Sign up by 03/31/2026!

Receive $5,000 in Options & Upgrades
Plus: $0 Down + No Payment During Construction *WAC

$5,000

Save On Upgrades